schmales-headerbild_2.jpg
Doppelhaushälfte - Sanierungsfall
Hausansicht
Wohnzimmer
Essplatz
Küche
Diele
Treppenhaus
Schlafzimmer
Rückansicht
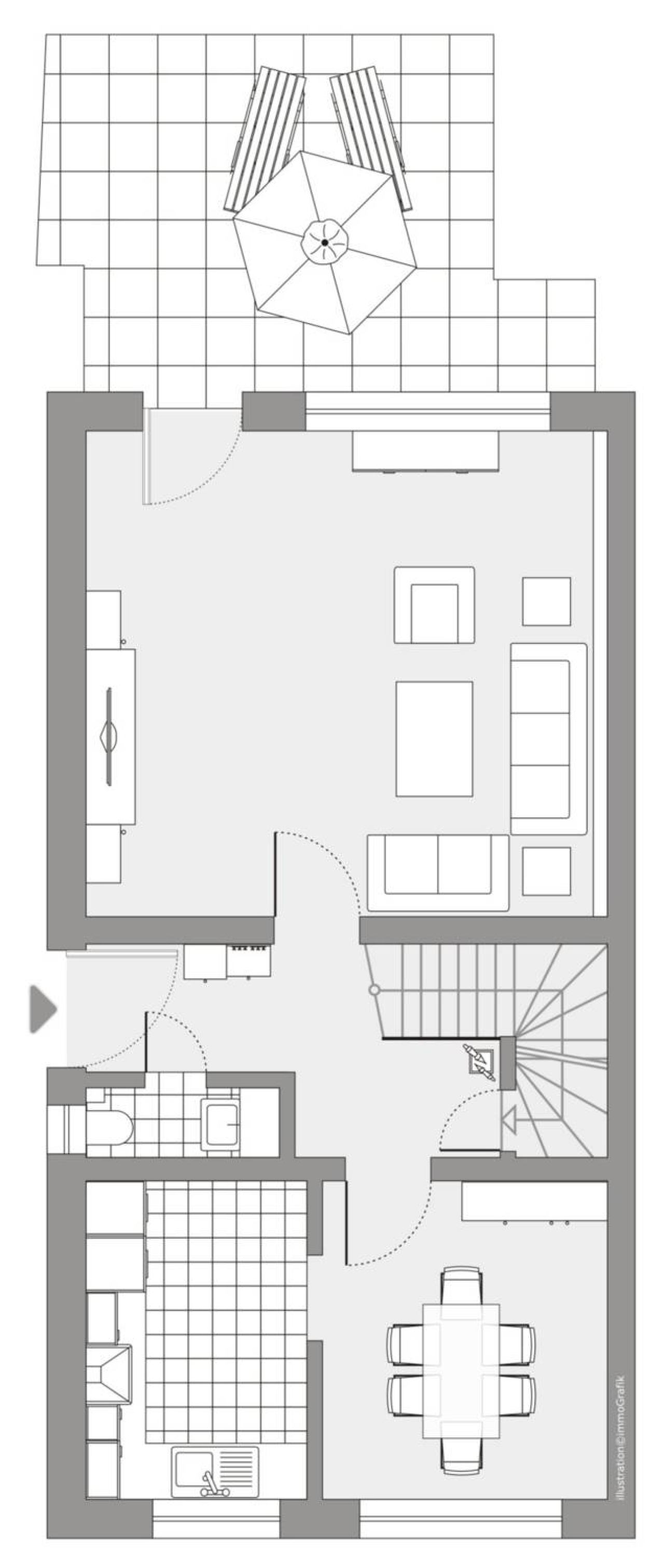
Erdgeschoß
1. OG
Keller
Hausansicht
Details
Objektdaten
(Objektnr.: 196776525)
Objektart
Doppelhaushälfte
Ort
Köln / Junkersdorf
Nutzungsart
Wohnen
Wohnfläche
108,00 m²
Nutzfläche
60,00 m²
Grundstücksfläche
374,00 m²
Kaufpreis
854.000 €
Käuferprovision
3,57 % inkl. MwSt
Schlafzimmer
2
Badezimmer
1
Baujahr
1961
Zimmeranzahl
3
Keller
ja
Stellplätze
1
Angaben zum Energieausweis
Art
Bedarf
Endenergiebedarf Endenergiebedarf Endenergie- bedarf
501.40 kWh/(m² · a)
Warmwasser enthalten
ja
Befeuerungsart
Öl
Heizungsart
Zentral
Energieeffizienzklasse
H
Gültig bis
19.01.2031
Baujahr (Energieausw.)
1961
Objektbeschreibung
Hier bieten wir Ihnen eine sanierungsbedürftige Doppelhaushälfte an, die ca. 1961 auf einem 374 m² großen Grundstück in massiver Bauweise errichtet wurde.
Grundsolide an sich, ist dieses Haus in der Zeit stehen geblieben und bedarf einer umfassenden Sanierung. Ein Vorhaben, das sich jedoch lohnt.
Wohnhäuser gleicher Jahrgangsklasse im näheren Wohnumfeld, zeigen welches Potenzial hier gegeben ist.
Aktuell verfügt das Haus bei 108 m² Wohnfläche über Wohnzimmer mit Zugang zu Terrasse und Garten, Küche, Essplatz un Gäste-WC im Ergeschoß.
Im Obergeschoß sind ein großes Schlafzimmer mit Balkon ein kleines Zimmer sowie ein Tageslichtbad mit Wann und Dusche vorhanden.

Das Haus ist voll unterkellert. Eine PKW-Garage ist vorhanden.

Gerne besprechen wir mit Ihnen die bestehenden Möglichkeiten zu Aus-/ Umbau und Erweiterungsmöglichkeiten.
Auf unser Netzwerk aus guten Architekten und Handwerksbetrieben können Sie bei Bedarf gerne zurückgreifen.
Lage
Junkersdorf

Junkersdorf gehört zu den besten Wohnlagen im Westen von Köln.
Dieser Stadtteil genießt viele Vorzüge, und eine sehr gute innere Infrastruktur sorgt für echte Lebensqualität in diesem Quartier.

Alle Geschäfte für den täglichen Bedarf sind hier zu finden, ein gutes Angebot unterschiedlicher gastronomischer Betriebe ist am Platz. Ärzte, Apotheken, Kindergärten und Grundschule, alles vorhanden!

Weitere Einkaufsmöglichkeiten gibt es im angrenzenden Stadtteil Weiden (Rheincenter), im benachbarten Marsdorf die Filial-Supermärkte.

Weiterführende Schulen befinden sich in benachbarten Stadtteilen und sind mit Bus/Bahn und Fahrrad sehr gut zu erreichen.

Das durchgrünte Junkersdorf grenzt unmittelbar an den Stadtwald mit zahlreichen Sportvereinen und anderen Freizeit-/ Naherholungsmöglichkeiten.

So selbständig das selbstbewusste Junkersdorf (laut erster urkundlicher Erwähnung nun 1050 Jahre alt) auch ist, so gut ist es in die Stadt eingebunden. Die Kölner Innenstadt, ca. 6 Kilometer entfernt, ist mit der Straßenbahnlinie 1 gut zu erreichen. Die Anbindung an den öffentlichen Nahverkehr ist, neben der Straßenbahn, über die Buslinien 141 und 147 gewährleistet. Das Autobahnkreuz Köln-West bietet den Anschluss an das überregionale Straßennetz.

Junkersdorf erfreut sich einer immer weiter zunehmenden Beliebtheit und hat sich sehr verjüngt.
Ansprechpartner
WAV Immobilien Reuschenbach GmbH
Immobilienanfrage
Möchten Sie weitere Informationen zu dieser Immobilie?
Pflichtfelder *
Ihre Daten werden verschlüsselt übertragen, vertraulich behandelt und nicht an Dritte weitergegeben.
Weitere Immobilien
Weitere aktuelle Angebote finden Sie hier. Sollte die passende Immobilie nicht dabei sein, legen wir gerne ein Suchprofil für Sie an.
Junge Doppelhaushälfte in ruhiger Sackgasse (KEINE Erbpacht)
Doppelhaushälfte zum Kauf
50389 Wesseling
Kaufpreis
450.000 €
Helle 4-Zimmer-Wohnung über den Dächern von Brühl
Wohnung zur Miete
50321 Brühl
Nettokaltmiete
830 €
Direkter Einzug möglich!  3-Zimmerwohnung mit sonniger Terrasse!
Wohnung zur Miete
50389 Wesseling
Nettokaltmiete
600 €
Aufzug, Balkon, zentrale Lage! Ideal für Senioren!
Wohnung zur Miete
50321 Brühl - 50321 Brühl
Nettokaltmiete
645 €
Große, luftige Dachgeschosswohnung mit Nähe zur Linie 18!
Wohnung zur Miete
53332 Bornheim
Nettokaltmiete
530 €
Zentrale 3-Zimmerwohnung mit Balkon und Aufzug!
Wohnung zur Miete
50321 Brühl - 50321 Brühl
Nettokaltmiete
630 €
Baugrundstück in Höhenlage von Merten
Grundstück zum Kauf
53332 Bornheim
Kaufpreis
299.000 €
Gleuel: Vermietete 3-Zimmerwohnung in kleinem Mehrfamilienhaus
Wohnung zum Kauf
50354 Hürth
Kaufpreis
198.000 €
SÜRTH: Zwei Häuser zum Preis von einem!
Haus zum Kauf
50999 Köln
Kaufpreis
650.000 €
Großzügige und helle 3-Zimmer-Wohnung mit Balkon!
Wohnung zur Miete
50321 Brühl - 50321 Brühl
Nettokaltmiete
620 €
Brüggen: Komplett modernisierte Wohnung in ruhigem 6-Familienhaus
Wohnung zum Kauf
50169 Kerpen
Kaufpreis
175.000 €
Vermietete Doppelhaushälfte als attraktive Kapitalanlage
Doppelhaushälfte zum Kauf
50170 Kerpen
Kaufpreis
500.000 €
Bitte warten. Ihre Anfrage wird bearbeitet
Diese Seite verwendet Cookies, um Ihnen als Nutzer das bestmögliche Nutzererlebnis zu ermöglichen. Mit der Nutzung unserer Dienste erklären Sie sich mit unserem Einsatz von Cookies einverstanden. Details erfahren Sie hier.